Ваш город: Москва
Ваш город
Москва?

Выберите город

По данному запросу ни одного города не найдено!
Заказать звонок

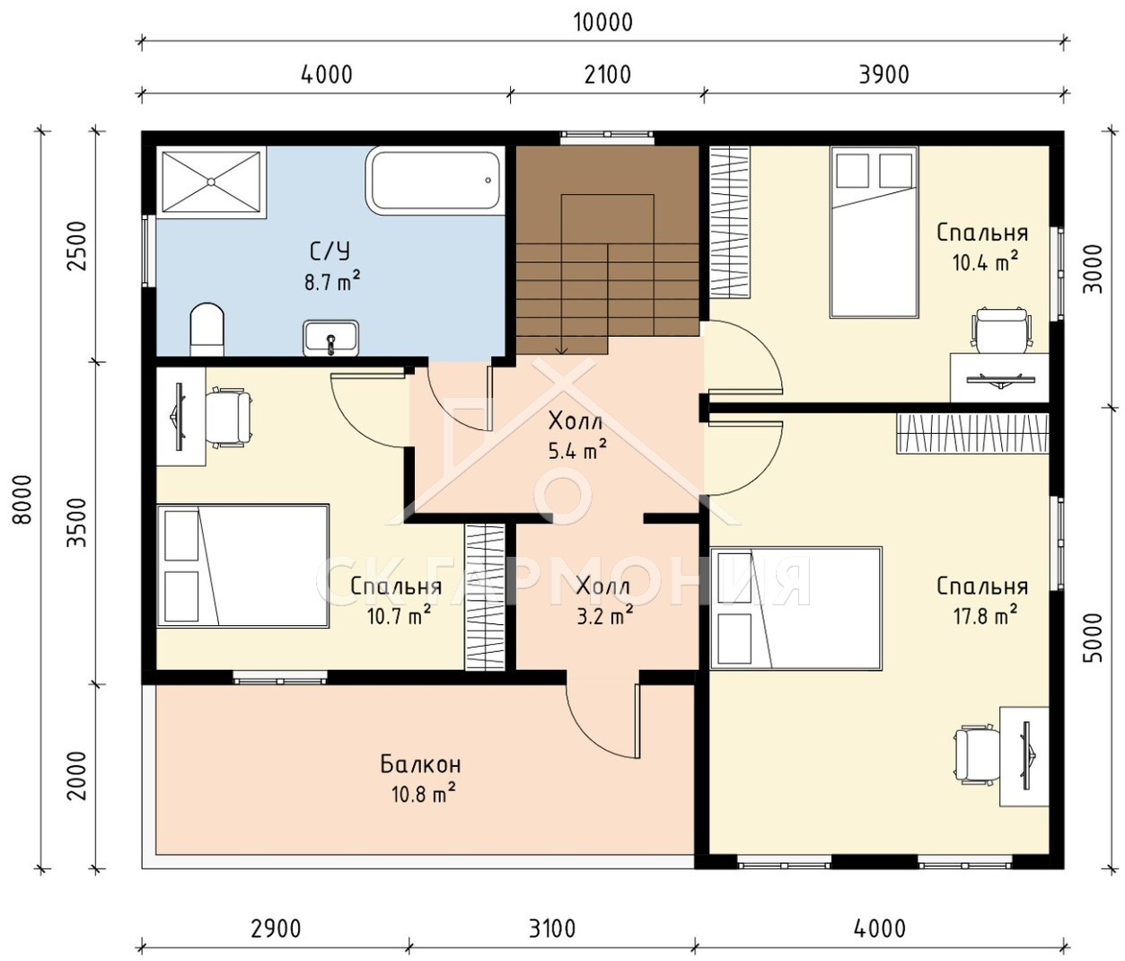
Каркасный дом 8x10, проект Сестрорецк

Проект дома «Сестрорецк» представляет собой просторный двухэтажный дом с террасой, из экологически чистых материалов, который подходит для постоянного проживания. Строительство двухэтажного дома под ключ в Москве и Московской области потребует сроки до 33 дней. Вы можете заказать строительство без отделки или с чистовой отделкой и коммуникациями.
Цена строительства дома «Сестрорецк» размером 8x10 и площадью 160 м2 - от 2 965 000 р.

Оставляйте свои контакты, мы перезвоним. Или позвоните по телефонам указанным на сайте. Договоримся о встрече, обсудим проект, обязательно учтем все Ваши пожелания.

В проект каркасного дома можно внести любые изменения совершенно бесплатно!

Например, изменить габаритные размеры, планировку, высоту этажей, материалы, количество и расположение окон и дверей и другое.

Цены
Холодный контур
2 965 000р.
Теплый контур
3 866 000р.
Каркас 150мм
4 450 000р.
Каркас 200мм
4 687 000р.
Площадь застройки 80 м2
Размеры 8x10
Площадь общая 160 м2
Санузлов 2
Этажи
2
Крыша
Прямая
Сроки
33 дней
Гарантия
3 года
Дата окончания строительства
23 февраля при заказе сегодня
С нами выгодно сотрудничать
Примеры материалов внешней отделки
Вагонка
Имитация бруса
Имитация бревна
Сайдинг ПВХ
Любой материал
Технология
Комплектации
Доп. работы
Фундаменты
Этапы работы

Используем только строганый материал камерной сушки.

Строим поэтапно. Вы можете заказать у нас каркас под крышу, внешний контур, каркас с утеплением или же дом с отделкой.

Характеристики

Холодный контур

Для ПМЖ до -20 °C
Утепление 150 мм

Для ПМЖ до -40 °C
Утепление 200 мм

Что входит в стоимость

Материал
Доставка в радиусе 500 км от производственной базы в г. Пестово. Далее 150 руб/км
Сборка

Фундамент

В стоимость дома не входит. Рассчитывается отдельно. Стоимость и тип фундамента зависят от проекта, от типа грунта и перепада высот на участке.

Выбрать фундамент
Основание дома
Гидроизоляция между фундаментом и обвязкой

Линокром Технониколь в 2 слоя

Первый венец обвязки

Строганый брус камерной сушки 145х145 мм

Второй венец обвязки

Торцевая строганая доска камерной сушки сечением по проекту

Наружная стена
Наружная отделка

Имитация бруса камерной сушки .
Возможна замена на планкен, скандинавскую доску, блок-хаус, сайдинг, панели  и др. с корректировкой стоимости.

Вент. зазор (контррейка)

Строганый брусок камерной сушки сечением 35х45 мм

Паропроницаемая ветровлагозащита

Ondutiss SMART A (A100) с клеящей монтажной лентой

Стойки, ригели, верхняя и нижняя обвязка

Строганая доска камерной сушки сечением по проекту (не менее 45х145 мм) с шагом 59 см

Укосы

Строганая доска камерной сушки 35х145 мм

Утеплитель

Без утепления 

Rockwool Скандик толщиной 150 мм

Rockwool Скандик толщиной 200 мм

Пароизоляция

Нет

Ondutiss Smart B (R70) с клеящей монтажной лентой

Внутренняя отделка

Без отделки

Вагонка «Штиль» класса «АВ» сечением 16х96 мм. Можно заменить на имитацию бруса, ГКЛВ и др.

Перегородки
Отделка

Без отделки

Вагонка «Штиль» класса «АВ» сечением 16х96 мм. Можно заменить на имитацию бруса, ГКЛВ и др.

Стойки, ригели, верхняя и нижняя обвязка.

Строганая доска камерной сушки сечением по проекту с шагом 59 см

Укосы

Строганая доска камерной сушки сечением 25х95 мм с шагом 59 см

Шумоизоляция

Без шумоизоляции

Rockwool Скандик толщиной 50 мм

Пароизоляция

Нет

Ondutiss Smart B (R70) с клеящей монтажной лентой

Цокольное перекрытие
Лаги

Строганая доска камерной сушки сечением по проекту (не менее 45х145 мм) с шагом 59 см

Черепной брусок

Брусок камерной сушки 50х50 мм

Черновой пол

Обрезная доска камерной сушки 22х100 мм

Паропроницаемая ветровлагозащита

Ondutiss SMART A (A100) с клеящей монтажной лентой

Утеплитель

Без утеплителя

Knauf Тисма толщиной 150 мм

Knauf Тисма толщиной 200 мм

Пароизоляция

Нет

Ondutiss Smart B (R70) с клеящей монтажной лентой

Отделка пола

Без отделки

Предчистовые, влагостойкие шпунтованные плиты Quick Deck толщиной 16 мм по обрешетке из строганой доски камерной сушки сечением 25х95 мм с шагом 20-25 см.

Межэтажное перекрытие
Отделка потолка

Без отделки

Вагонка «Штиль» класса «АВ» сечением 16х96 мм. Можно заменить на имитацию бруса, ГКЛВ и др.

Пароизоляция

Нет

Ondutiss Smart B (R70) с клеящей монтажной лентой

Лаги перекрытия

Строганая доска камерной сушки сечением по проекту (не менее 45х145 мм) с шагом 59 см

Шумоизоляция

Без шумоизоляции

Knauf Тисма толщиной 100 мм

Пароизоляция

Нет

Ondutiss Smart B (R70) с клеящей монтажной лентой

Отделка пола

Без отделки

Предчистовые, влагостойкие шпунтованные плиты Quick Deck толщиной 16 мм по обрешетке из строганой доски камерной сушки сечением 25х95 мм с шагом 20-25 см.

Чердачное перекрытие
Отделка потолка

Без отделки

Вагонка «Штиль» класса «АВ» сечением 16х96 мм. Можно заменить на имитацию бруса, ГКЛВ и др.

Пароизоляция

Нет

Ondutiss Smart B (R70) с клеящей монтажной лентой

Лаги

Строганая доска камерной сушки сечением по проекту (не менее 45х145 мм) с шагом 59 см

Утеплитель

Без утепления

Knauf Тисма толщиной 150 мм

Knauf Тисма толщиной 200 мм

Крыша
Отделка потолка (если предусмотрено проектом)

Без отделки

Вагонка «Штиль» класса «АВ» сечением 16х96 мм. Можно заменить на имитацию бруса, ГКЛВ и др.

Пароизоляция (если предусмотрено проектом)

Нет

Ondutiss Smart B (R70) с клеящей монтажной лентой

Утеплитель (если предусмотрено проектом)

Без утепления

Rockwool Скандик толщиной 150 мм

Rockwool Скандик толщиной 200 мм

Стропила

Строганая доска камерной сушки сечением по проекту (не менее 45х145 мм) с шагом 59 см

Паропроницаемая ветровлагозащита

Ondutiss PRO AM 130 (SA130)

Обрешётка

Разряженная обрешетка из обрезной доски камерной сушки 22х100 мм с шагом 25-35 см.

Контробрешётка

Строганый брусок камерной сушки 35х45 мм

Кровельное покрытие

Металлочерепица Монтеррей/Монтерра с полным комплектом доборных элементов (коньки, ендовы, ветровые, капельники, карнизные планки, планки примыкания и др.). Цвет на выбор по каталогу RAL производителя.
Возможна замена на ондулин, профлист, битумную черепицу и др. 

Отделка свесов

Планкен прямой камерной сушки 20х96 мм с зазором 10 мм

Окна и двери
Окна

Стеклопакеты ПВХ двухкамерные обналиченные с фурнитурой.
Профиль Melke Smart 60, фурнитура FUTURUSS с отливами и москитными сетками.

Двери

Металлическая «Йошкар» или «Гарда» усиленная утепленная производства Россия. Обналиченная с замком, ручками и глазком
Межкомнатные  двери - только проемы.

Прочее
Высота потолков

1 этаж — 250 см
2 этаж — 230 см

Лестница (если предусмотрена проектом)

Лестница деревянная. Конфигурация по проекту. С фасонными перилами и точечными балясинами заводского изготовления. Материал тетивы – строганый брус камерной сушки. Ступени - клееный щит. 

Терраса и балкон (если предусмотрены проектом)

Верхняя обвязка и столбы — строганый брус камерной сушки 145х145 мм или пакет из трех строганых досок камерной сушки 45х145 мм.

Отделка полов — террасная доска 36х140 мм Вельвет хвойных пород камерной сушки с зазором 4-6 мм для стока воды.

Ограждения — строганая доска камерной сушки 45х95 мм в четыре ряда. Первый ряд вплотную к перилам, остальные ряды с равным расстоянием друг между другом.

Перила — строганая доска камерной сушки 45х145 мм горизонтально

Отделка потолка — планкен прямой камерной сушки 20х96 мм с зазором 10 мм

Плинтус

Деревянный строганый 40-45 мм. На стыки стен, пола и потолка. Не монтируется на предчистовую отделку плитами Quick Deck, ГКЛВ, OSB и др.

Дополнительные работы

Металлическая винтовая свая диаметром 108 мм и длиной 2,5 м с монтажом и оголовком. Доставка свайного фундамента рассчитывается отдельно.

 
4500 руб / 1 свая

Железобетонная забивная свая сечением 150х150 мм длиной 3 м с монтажом и оголовком. Доставка железобетонных сваи и техники для установки рассчитывается отдельно.

5 500 руб / 1 свая

Антисептирование обрезного материала силовых конструкций на производстве. Антисептик ХМ-11.

3 000 руб / 1 м3

Монтаж металлической сетки от грызунов под черновой пол. Размер ячейки — 0,6х0,6 см.

500 руб / 1 м2

Аренда генератора мощностью 3,3 кВт на время строительства. Бензин предоставляется заказчиком.

15 000 руб

Дополнительное окно ПВХ двухкамерное размером 1х1,2 м с установкой, отливом, москитной сеткой, отделкой откосов, подоконником ПВХ.

15 000 руб

Настил из террасной доски Вельвет из хвои толщиной 27 мм.

от 2 000 руб / 1 м2

Обшивка фундамента цокольными панелями.

от 3000 руб / 1 пог. м

Контробрешетка из строганого бруска сечением 45х45 мм (вент. зазор) внутри.

250 руб / м2

Контробрешетка из строганого бруска сечением 25х45 мм (вент. зазор) внутри.

150 руб / м2

Входная металлическая дверь с терморазрывом.

от 40 000 руб

Установка вентиляционного канала с выводом в кровлю

от 35 000 руб / 1 точка

Установка металлических трубчатых снегозадержателей GRANDLINE.

от 2500 руб / 1 м.пог.

Установка пластиковой водосточной системы «Docke»

от 2000 руб / 1 м.пог.

Обшивка наружных стен влаговетрозащитными плитами Белтермо Топ толщиной 20-25 мм шип-паз.

от 1200 руб / 1 м2

Замена вагонки на имитацию бруса сечением 17х140 мм

от 400 руб / 1 м2

Окраска внешней и внутренней отделки (вагонки, имитации бруса, наличника, столбов террасы, перил и т. д.) в заводских условиях. Грунт + 2 слоя краски. Упаковка с мягкими прокладками.

от 850 руб / 1 м2

Обшивка наружных стен виниловым сайдингом

от 2000 руб / 1 м2

Обшивка наружных стен плитами OSB толщиной 9 мм под фасадную отделку

от 280 руб / 1 м2

Обшивка наружных стен фасадными панелями

от 2500 руб / 1 м2

Вертикальная внешняя отделка

уточняйте

Замена кровельного покрытия из ондулина на металлочерепицу толщиной 0,45 мм профиля Монтеррей.

800 руб / м2

Бытовка размером 2х3 м на 4 фундаментных блоках размером 200х200х400 мм для проживания бригады строителей. В стоимость включена доставка и сборка. После строительства бытовка остается на участке.

27 000 руб.

Туалет дачный деревянный размером 1,0х1,2 м.

15 000 руб
Свайно-винтовой фундамент
Железобетонные забивные сваи
Монолитная железобетонная плита
Свайно-винтовой фундамент

В грунт закручиваются металлические сваи, которые на конце имеют винт. Посредством этого винта и площади поверхности свая несёт нагрузку. Возможна установка ручным и механизированным способом. Глубина погружения винта должна быть ниже глубины промерзания. Таким образом фундамент будет защищен от морозного пучения.

  • Низкая стоимость по сравнению с ж/б сваями, ленточным фундаментом или монолитной плитой — от 4500 руб. за сваю диаметром 108 мм и длиной 2,5 м.
  • Время монтажа - 1 день.
  • В этот же день можно приступить к работам по возведению дома.
  • Монтаж в любое время года.
  • Отсутствие земляных работ.
  • Сваи можно устанавливать на любом типе грунта, за исключением скальных пород.
  • Не требует специальной техники. Возможность монтажа в труднодоступных местах.
  • Практически невозможность установки на скалистых и каменистых грунтах.
  • Невозможно возведение полноценного подвала или цокольного помещения.
  • Сваи подвержены коррозии при отсутствии или некачественно выполненной гидроизоляции.

В стоимость включены монтаж сваи, заливка цементно-песчаным раствором, монтаж оголовка, покраска. Выезд специалиста для пробного бурения оплачивается дополнительно в размере 3000 рублей.Монтаж производит подрядная организация. При этом гарантия на фундамент двойная — от нас и от подрядной организации.

Железобетонные забивные сваи

Сваи в виде опорных столбов с квадратным сечением и пирамидальным наконечником, изготовленные в заводских условиях. Сваи забиваются в грунт с помощью сваебойной техники.

  • Невысокая стоимость по сравнению с ленточным фундаментом или монолитной плитой — от 5500 руб. за сваю сечением 150х150 мм и длиной 3 м.
  • Время монтажа — 1–2 дня.
  • Монтаж в любое время года.
  • В этот же день можно приступить к работам по возведению дома.
  • Устанавливаются только сваебойной машиной, для которой должен быть организован подъезд на участок.
  • Сваи устанавливаются только на плотных грунтах.
  • Сваи подвержены коррозии при отсутствии или некачественно выполненной гидроизоляции.
  • Дороже, чем винтовые сваи.
Монолитная железобетонная плита

Представляет из себя сплошную плиту под всё основание дома. Толщина определяется по расчету.

  • Устанавливается на любой тип грунта, в том числе и на слабый.
  • Высокая несущая способность.
  • Срок службы более 100 лет.
  • Требуются минимальные земляные работы.
  • Плита равномерно распределяет нагрузки и не происходит проседание дома.
  • Работы можно провести без спецтехники.
  • Высокая стоимость по сравнению с другими фундаментами.
  • Необходимо подготовить грунтовое основание.
  • Возможны трудности с прокладкой коммуникаций.

В стоимость включены монтаж сваи, заливка цементно-песчаным раствором, монтаж оголовка, покраска. Выезд специалиста для пробного бурения оплачивается дополнительно в размере 3000 рублей.Монтаж производит подрядная организация. При этом гарантия на фундамент двойная — от нас и от подрядной организации.

Проектируем мечту
Проектируем мечту

Выбираете понравившийся типовой или создаёте вместе с нами свой проект мечты. Узнаём Ваши предпочтения, подбираем материалы.

Согласовываем моменты
Согласовываем моменты

Уточняем все Ваши пожелания по процессу строительства и срокам. Решаем вопросы с электричеством, проживанием бригады.

Заключаем договор
Заключаем договор

Согласовываем пункты договора и подписываем его.

Доставляем материал на участок
Доставляем материал на участок

Вы знакомитесь с нашими профессиональными строителями, проверяете качество материала. На данном этапе происходит оплата 70% от фиксированной цены в договоре.

Воплощаем мечту в жизнь
Воплощаем мечту в жизнь

Строители начинают своё дело. Вы можете оперативно получить любую информацию в совместном чате с бригадиром и руководителем компании. Там же будут размещаться ежедневные фото- и видеоотчеты.

Получаете удовольствие от комфорта
Получаете удовольствие от комфорта

Вы подписываете акт сдачи-приёмки работ и оплачиваете оставшиеся 30% от цены в договоре. Больше никаких дополнительных платежей. Бессрочно общаемся и консультируем Вас по любым вопросам.

Почему Вы можете быть уверены
Работаем с ипотекой, мат. капиталом и кредитами
Работаем с ипотекой, мат. капиталом и кредитами

Мы аккредитованы на порталах Домклик и Наш.Дом.РФ

Посетите наши объекты
Посетите наши объекты

Приглашаем Вас посмотреть уже построенные нами или строящиеся дома и пообщаться с хозяевами

Цена зафиксирована в договоре
Цена зафиксирована в договоре

Договор без мелкого шрифта, звёздочек и дополнительных опций. Цена не меняется в процессе строительства.

Бесплатная разработка индивидуального проекта
Бесплатная разработка индивидуального проекта

Разработаем планы и эскизы дома по Вашим пожеланиям

Поддержка после сдачи объекта
Поддержка после сдачи объекта

В любое время проконсультируем по телефону или в чате по вопросам отделки, ремонта и эксплуатации.

До 3 лет гарантии
До 3 лет гарантии

Гарантия на весь объект, а не на отдельные его части.

Опытные строители
Опытные строители

Средний опыт наших строителей — 5 лет. У «ветеранов» 20+

Работаем с 2014 года
Работаем с 2014 года

Более 250 довольных семей живут в построенных нами уютных домах.

Скидка на предложение конкурентов
Скидка на предложение конкурентов

Оценим конкурентное предложение. При одинаковом качестве сделаем скидку

По этому проекту построили
Каркасный дом 8х10 по проекту "Сестрорецк"
Размер 8х10
Площадь 160 м2
Этажи 2
Сроки 27 дней
Получите бесплатную консультацию
и расчет проекта